Adjust the push-in amount of the vertical alignment plate of the stacker that aligns a paper stack when stapling.
This function prevents a paper misalignment or deflection by matching the paper properties or paper size.
Category | Adjustment / Maintenance | ||
Location | Machine | Touch Panel | |
Printer driver | - | ||
Application | - | ||
Required options | Finisher FS-541 | ||
Required items | - | ||
Setting items | [Offset for All Size] | Adjusts the push-in amount common to all the paper sizes. | |
Paper size selection key | Selects the paper size to adjust. | ||
[+] / [,] | Switches the paper size page. | ||
Keypad | Used to enter numeric values. | ||
[Clear] | Returns the entered numeric value to "0". | ||
[Set] | Sets the numeric value entered using the keypad to the selected setting item. | ||
Remarks | - | ||
Reference | - | ||
Screen access | Touch panel - [MACHINE] - [Adjustment] - [Finisher Adjustment] - [Staple Finisher Adjustment] - [Staple Finisher(Main) Adj.] - [FD Alignment Plate Adj.] | ||
Control panel - Utility/Counter - [Administrator Setting] - [System Setting] - [Expert Adjustment] - [Finisher Adjustment] - [Staple Finisher Adjustment] - [Staple Finisher(Main) Adj.] - [FD Alignment Plate Adj.] | |||


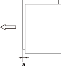
A sample is output.

If the paper stack is distorted, the push-in amount may be too large.
Standard value: 1.0 mm or less when binding 2 to 15 sheets, 1.5 mm or less when binding 16 to 100 sheets

Use [+]/[-] to select the plus or minus of the numeric value. To change [Current Data], press [Set].
[Adj. Range:-50~+50 1step = 0.1mm]